ChatsApp

Fecha de entrega

Mayo 2027

Descripción

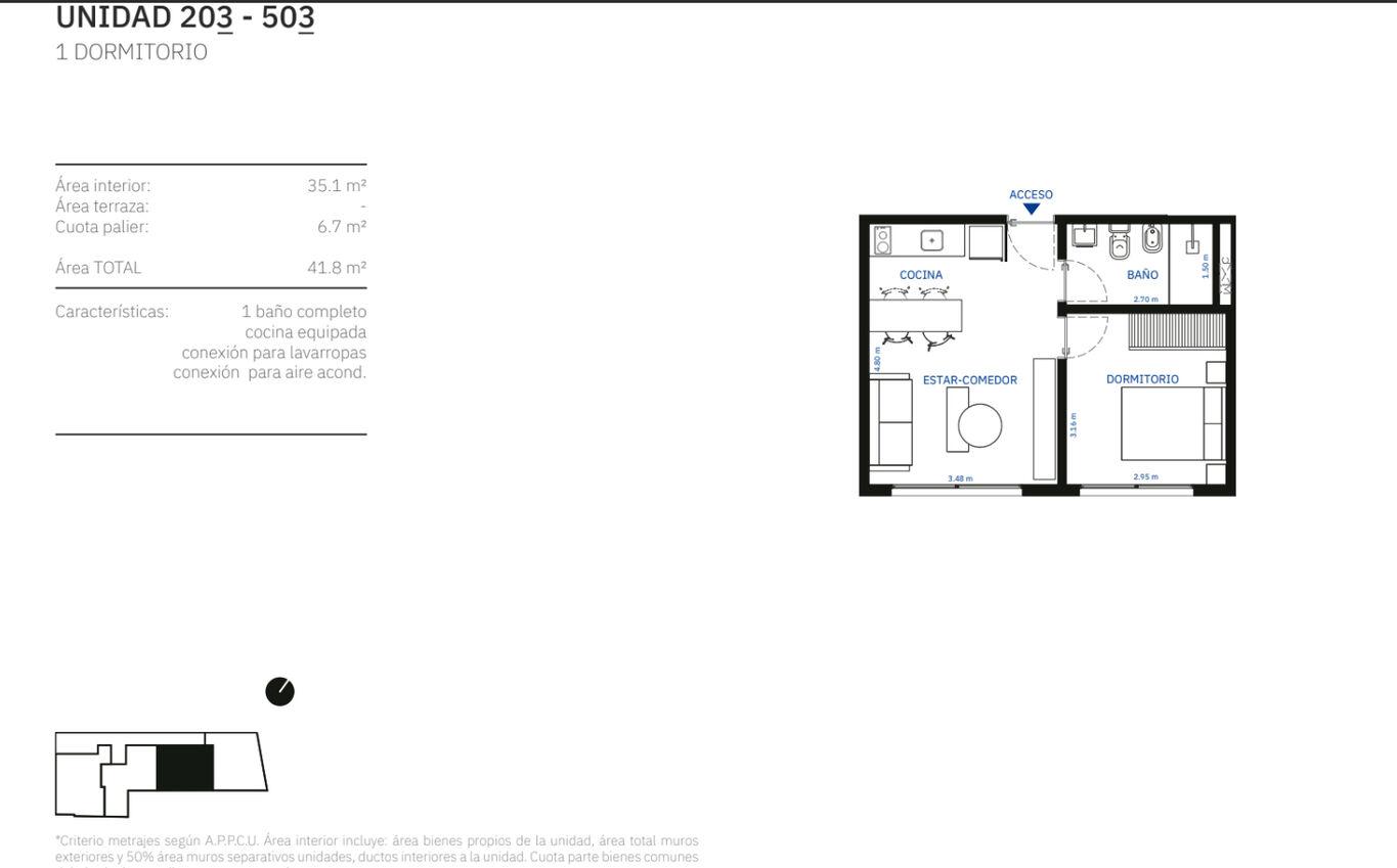
UNIDAD
Apartamento venta de 1 dormitorio al frente en piso 3 + azotea de uso exclusivo de 6 m2.
Excelente tipología cuadrada. (Único en el mercado con ancho de Living 3.48 m2)
Living Comedor con buena iluminación y ventanales piso techo
Cocina Integrada y equipada.
Conexión para Lavarropas y aires acondicionados.

UBICACION
El proyecto se ubica en el corazón del barrio La Blanqueada, sobre la calle Jaime Cibils 2787 casi 8 de Octubre (La Blanqueada).
Una zona en pleno crecimiento, rodeado de servicios, centros de Salud y universidades (Universidad Católica).

EL EDIFICIO
Obra en Curso / Fecha de entrega: Mayo 2027.
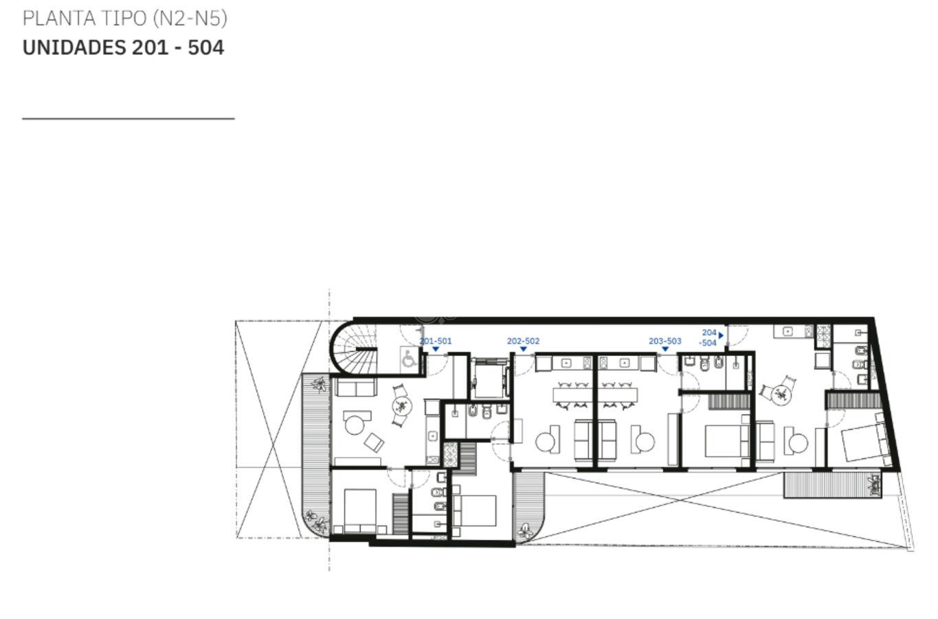
El edificio se desarrolla en 6 niveles, los primeros 5 niveles encontraremos 4 unidades por planta de 1 dormitorio (en diversas tipologías).
En el nivel 6 se encontrará el solarium de uso común con su parrillero pergolado.
El proyecto se encuentra amparado bajo la ley de promoción de vivienda.

GASTOS ASOCIADOS
- 3% + Iva de Honorarios Inmobiliarios
- Gastos de Ocupación: USD 4040

Características de la propiedad

  • Habitaciones1 Habitación
  • BañosBaños: 1
  • SuperficieSuperficie: 35,00 m²
  • Superficie ConstruidaSuperficie Construida: 35,00 m²
  • PisoPiso: 3
  • AscensorAscensor
  • Ascensor: Si
  • Piso: 3
  • Superficie construida: 35 m2

Contactate con nosotros

captcha

¿Quiénes somos?

Una empresa joven iniciada en el mercado inmobiliario en el año 2017.
Nuestro equipo de trabajo está integrado por profesionales universitarios, cuyo objetivo es brindar un servicio a la altura de la operación.